
HM102型機械密封是一中內流內裝、單端面、多彈簧非平衡型結構,符合ISO-3069、 JB1472-75標準。應用于各種離心泵、化工泵、管道泵及管道增壓泵、排污泵、多級給水泵。
本系列機械密封中○型圈分丁腈橡膠、氟橡膠兩種,請用戶在選用時注意。
如果使用介質的腐蝕性較強,則應改○型圈為聚四氟乙烯V型圈。用戶在訂貨時必須注意。
本系列為提高水泵產品的三化程序,謹向用戶推薦優先選擇使用。
適用范圍:
◇ 密封 介質:水、油、弱酸、弱堿等一般腐蝕性介質
◇ 密封壓力:≤1.0 MPa
◇ 密封腔溫度:
丁腈橡膠:-20~180℃
氟橡膠:-20~180℃
聚四氟乙烯V型圈:-80~250℃
◇ 轉速:軸徑≤φ45 : ≤3000 轉/分
軸徑 >φ45 : ≤1450 轉/分

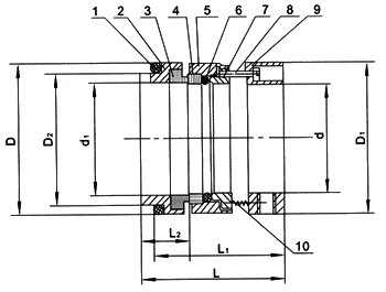
1、靜環○型圈 2、靜環座 3、靜環 4、動環 5、動環座 6、動環○型圈
7、傳動座 8、連接螺釘 9、彈簧座 10、彈簧
| 型號 | d | d1 | D | D1 | D2 | L | L1 | L2 |
| 102-25 | 25 | 26.5 | 40 | 40 | 34 | 45 | 38 | 19 |
| 102-28 | 28 | 29.5 | 43 | 43 | 37 | 45 | 38 | 19 |
| 102-30 | 30 | 31.5 | 45 | 45 | 39 | 45 | 38 | 19 |
| 102-35 | 35 | 36.5 | 50 | 50 | 44 | 50 | 43 | 20 |
| 102-40 | 40 | 41.5 | 58 | 56 | 52 | 55 | 48 | 20 |
| 102-45 | 45 | 46.5 | 63 | 62 | 56 | 57 | 50 | 20 |
| 102-50 | 50 | 51.5 | 70 | 69 | 62 | 60 | 53 | 22 |
| 102-55 | 55 | 56.5 | 75 | 74 | 67 | 60 | 53 | 22 |
| 102-60 | 60 | 61.5 | 80 | 79 | 72 | 60 | 53 | 22 |
| 102-65 | 65 | 66.5 | 85 | 84 | 77 | 62 | 57 | 23 |
| 102-70 | 70 | 71.5 | 92 | 91 | 83 | 62 | 57 | 23 |
| 102-75 | 75 | 76.5 | 97 | 96 | 88 | 65 | 63 | 25 |
| 102-80 | 80 | 81.5 | 105 | 104 | 95 | 65 | 63 | 25 |
| 102-85 | 85 | 86.5 | 110 | 109 | 100 | 65 | 63 |